說在前面
本案業主是一對年輕夫妻,帶著一個四歲的孩子,家居原本是標準的一居室戶型,考慮到孩子漸漸長大,需要有自己的空間,需要獨立,故在本次家裝過程中,對格局進行了調整,巧妙地改造出兩個臥室空間,滿足了一家三口的居住需求。
面積:60㎡
戶型:兩室一廳
常住人口:3口人
裝修成本:8萬
原始戶型圖
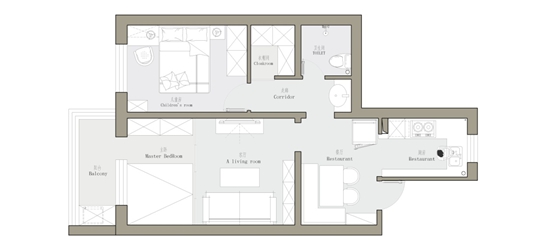
平面布局圖
原始戶型是一居室,根據業主一家三口的居住需求,對布局進行了調整,將原臥室入門右側區域隔出一小塊,作為衣帽間使用,同時將原客廳一分為二,增加了一室作為主臥,提高了空間利用率。
餐廳
△入戶區域兼具餐廳與玄關功能。
入門左手邊依墻打造了一個純白色立體柜,點綴黑色小把手,經典美觀,中部攔腰敞開的設計相當新穎,兼當玄關柜使用,隨手擺放一些小物件,上下封閉部分收納效果很棒。
靠墻采用卡座,既不會占用太多空間,又增加了收納面積,搭配折疊餐桌,這設計簡直太妙了,家里來幾個親戚朋友,也足夠使用了。
廚房
入門右轉就是廚房了,“二”字型棗紅色平行櫥柜,沉穩的啞光色調,檔次高級,經得住歲月的蹉跎。白色墻磚清新自然,便于清理,污垢無處可藏;
白底黑花的地板,讓人眼前一亮,為廚房增添了些許韻味。
客廳
黑色金屬包邊的玻璃滑門將客廳分為兩個區域,靠陽臺一側的部分設計成主臥,同時通過半墻設計,與陽臺分隔開,改動后絲毫不影響采光,全局依然很通透,空間利用可謂相當巧妙得當。
橘黃色皮質長沙發,搭配金屬邊圓面小茶幾,不同元素的碰撞,削弱了傳統造型帶來的一絲年代感,反而凸顯簡約時尚,墻邊的插座用于手機充電等生活所需,方便極了。
純白木質書架沒有花哨的設計,陳設在沙發側面,使用起來非常順手,整齊羅列的層板,大氣優雅,閑暇時倚在沙發上翻閱幾頁書籍、雜志,別提多舒心了。
灰色毛織地毯,柔軟舒適,讓客廳具有了溫度,暖進人心。
背景墻的文藝磚,造型原始低調,細品方能感受其獨特魅力。
簡約的設計,沒有多余裝飾,讓生活變得很簡單,輕松的居家氛圍,讓工作的煩惱不再啃噬著疲憊的身心,在家里,就應該享受時光。
電視背景墻設計成清幽的湛藍色,為客廳注入幾分寧靜,讓人浮躁的心情平和下來,去自由地呼吸,至少這個時候,美好屬于自己。
主臥
主臥位于客廳和陽臺之間,設計極為簡約,雙人床承接了客廳和陽臺的純白色調,讓區域空間的過渡更自然,床體兼具收納的功能,空間利用率大幅提高,藍色背景墻與客廳異面呼應,整體更協調。
兒童房
兒童房外部的衣帽間,配設亮黃色滑門,為素雅的過道,提升了幾個色度。
兒童房的色調比較活潑鮮明,床頭背景墻上白與藍的搭配,宛如天空的顏色,自由自在。童話風原木單人床與地板很搭,保證了室內核心布設的色調一致,大格局上不會顯得凌亂,滿天星的床上布置,趣味滿滿,很夢幻。
兩側墻體設計成亮黃色,讓空間色彩更豐富,也更飽滿,床頭和衣柜印上孩子喜歡的數字,給人運動風的感覺,很有意思。窗邊配設了兒童書桌,滿足孩子自主學習的需求。
屋頂的懸掛玩偶和床上的毛絨玩具,讓兒童房充滿童趣,從小細節上照顧了孩子的游樂心理。
衛生間
衛生間區域進行了干濕分離,磚砌的小門坎,屬于不起眼的一個小設計,卻發揮了很大的作用,淋浴區的水分無法浸入干區,保證了外部的干爽潔凈。
干區配設了黑色原木洗浴組合柜,下部鏤空,更容易清理,配套的壁柜,雙開門設計成美容鏡,背后具有收納功能,節省了空間。
濕區以高級灰為主色調,耐臟耐看,搭配黑色洗浴設備和白色馬桶,黑白灰的經典搭配,無可挑剔。