今天要分享的是一套165㎡的現代簡約家居,屋主是一對年輕的夫妻,有一個5歲的女兒。他們不喜歡華麗夸張的裝修風格,希望新房的設計是簡潔明快,實用舒適的。設計師遵從“極簡主義”的生活哲學,以干凈利落的空間,加上簡約流暢的線條,自然和諧的色彩搭配,將極簡風格完美演繹,享受無拘無束的自由生活。
房屋信息:
面積:165㎡
戶型:五室三廳兩衛
裝修成本:16萬
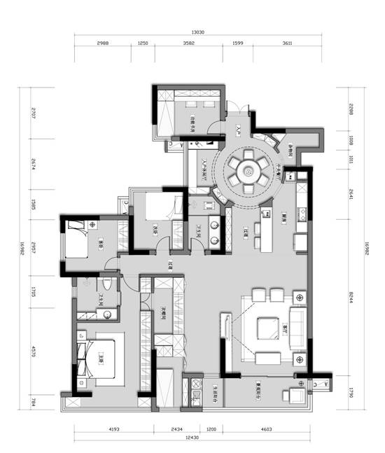
戶型圖
原戶型是客廳與餐廳一體化的設計,但餐廳的空間比較局促,廚房的采光相對比較差,整體布局不夠成熟合理。為體現家居空間的寬敞舒適,我們做了以下優化:
1、打造了入戶的中央餐廳,設計感強,用餐空間充裕。
2、開放式廚房與家居通道和諧共處,分區合理的同時,也提升了空間利用率。
3、將中心處的次臥進行功能分區,一部分改造成獨立的衣帽間;一部分融入客廳打造兒童游玩區,增加休閑空間;
4、拆除原本電視背景墻做半墻隔斷,增加空間通透性,大理石材質更顯時尚高端。
裝修風格上以簡約的現代風格為主,白色基調搭配大量原木家裝修飾,讓整體空間清新雅致,寬敞明亮。
客廳
關鍵詞:木質地板電視背景墻沙發布局
客廳裝修簡約大氣,透明的陽臺推拉門設計讓家居空間更加寬敞明亮,通風透氣。
客廳鋪設自然溫潤的木質地板,加上素雅的地毯和小茶幾,構建理想的品質家居生活。
沙發造型彎曲設計,線條流暢新穎,溫暖柔和的色調,為空間增添一抹靈動。閑暇時躺在沙發上,感受陽光的沐浴,溫暖柔和,舒適自在。
大面積的沙發背景墻純凈素雅,加上立體畫的裝飾,帶來不一樣的雅致風味。
半墻式的大理石電視背景墻高端奢華,黑白灰的色調搭配讓人感覺沉穩靜謐。
客廳矮墻后面打造成一個小型的休閑娛樂空間,鋪上兒童爬行墊,可供孩子自由玩耍,安全放心。
餐廳
關鍵詞:空間布局巖板餐桌個性吊燈
入戶門處是一個中央餐廳設計,后面是雜物間和廚房,空間布局合理,分區明確。
簡約輕奢的巖板餐桌,結構穩定,臺面有光澤。圓形設計寓意團團圓圓,時尚個性的吊燈設計,輕松打造休閑溫馨的就餐氛圍。
廚房
關鍵詞:開放式廚房吧臺木質櫥柜
利用吧臺做隔斷,將廚房與過道空間分隔開來,整體功能分區明確。
廚房屬于開放式設計,緩解了轉角空間的尷尬,提高空間利用率。實木的整體櫥柜環保無污染,堅固耐用。簡約大方的外形給人一種回歸大自然的感覺。
吧臺設計簡潔優雅,線條流暢,既可以是廚房的備餐空間,也可以是休閑小去處,實用又有情調,是日常生活的點睛之筆。
吧臺后面是連通餐廳與客廳的通道,在邊墻上打造嵌入式收納柜,可以有效增加收納空間。擺放上精致的工藝品擺件,達到很好的裝飾效果。
書房
關鍵詞:原木書房書架飄窗
書房采用大面積的原木設計,勾勒出純凈素雅的空間視覺。黑色的開放書架精致典雅,干凈整潔。
書房的飄窗設計極具人性化,平時可以坐在飄窗上,一杯茶,一本書,一縷溫暖的陽光,享受一段休閑自在的時光。
臥室
關鍵詞:納景落地窗護墻板床頭柜
主臥色調簡單純粹,無復雜裝飾,寬敞明亮。陽臺打通改造成超大的納景落地窗,休閑空間優越寬裕。
背景墻采用了灰色護墻板和原木拼接設計,低調奢華,溫潤而儒雅。
煙熏色床頭柜有大抽屜儲物空間,外觀個性獨特。以簡約美學觀念,用簡單線條和精致工藝設計,不動聲色地演繹時尚與奢華。
衣柜采用全實木設計,保留了樹木原有紋路,仿佛置身清新古樸的森林。懸空設計立體感強,大大的衣柜滿足了所有臥室衣物的置物需求,可謂是顏值與實力并存。
落地窗前擺放一款溫馨的單人小沙發,精致的落地燈上擺放一本好書,回歸初心,崇尚品質,感受難得的偷閑時光。
衛生間
關鍵詞:干濕分離玻璃淋浴房
衛生間打造全透明的玻璃淋浴房,實現了衛生間的干濕分離,也保持了整體空間的寬敞明亮。
地面和墻體都鋪設瓷磚,不同的色調紋理更具立體層次感,瓷磚材質也更方便衛生間的清潔打理,外觀高端上檔次,干凈整潔。
白色經典的浴室柜、臺上盆洗手池,還有方形浴室鏡,每一處都彰顯著精致與優雅。
結語
這套新房遵從“極簡主義”風格,追求時尚和現代的簡潔造型,舒適宜人的色彩,賦予整體家居個性和寧靜,讓居家生活充滿溫馨與愜意。
愛空間全國有1000多位設計師,幫你全屋設計。如有需求,可聯系設計顧問,1對1講解量房設計,溝通定制方案,切實做到設計的真實效果及實用性完美結合。